Skip to Content — Access Key: c

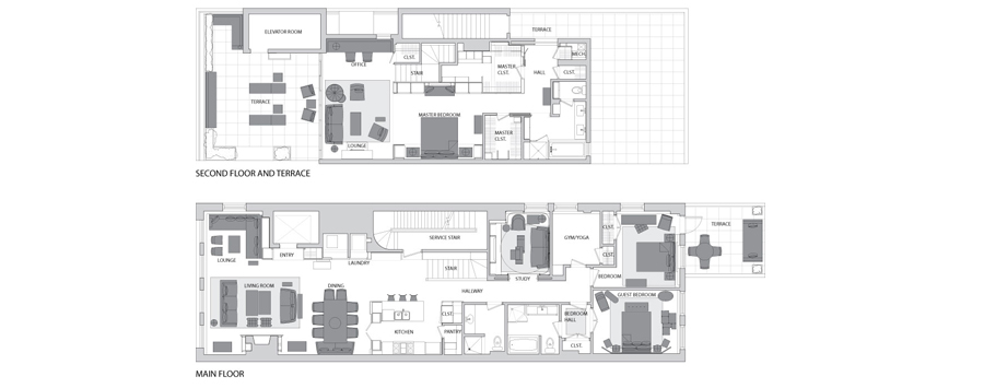
  • Den / Master Bedroom

  • Lounge/Office

  • bathroom

  • Guest Bedroom

  • Terrace

  • First Floor Plan/ 2512sqft

  • Second Floor Plan/ 1896sqft

Soho White Loft

Download PDF

This Soho loft transformation was a study in white. Employing large scale sculptural elements like the ebony wood entry and fireplace, the lacquered wood kitchen, the loft was recreated into a series of rooms within rooms. The white lacquer cabinets aborb the hue of the state-of-the-art LED color lighting system that morphs the apartment ambience from one mood to the next. All the furniture was custom tailored to each room. With three terraces and a yoga room, the loft is family made.


Photographer:  Scott Frances