- 
					
					Den / Master Bedroom
- 
					
					Lounge/Office
- 
					
					bathroom
- 
					
					Guest Bedroom
- 
					
					Terrace
- 
					
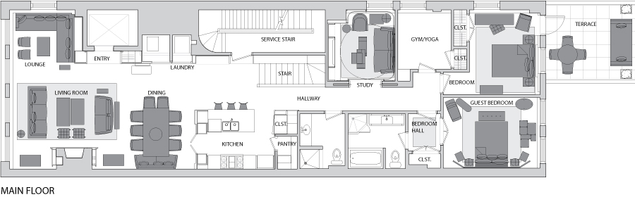
					First Floor Plan/ 2512sqft
- 
					
					Second Floor Plan/ 1896sqft
Soho White Loft
Download PDF
This Soho loft transformation was a study in white. Employing large scale sculptural elements like the ebony wood entry and fireplace, the lacquered wood kitchen, the loft was recreated into a series of rooms within rooms. The white lacquer cabinets aborb the hue of the state-of-the-art LED color lighting system that morphs the apartment ambience from one mood to the next. All the furniture was custom tailored to each room. With three terraces and a yoga room, the loft is family made.
Photographer:  Scott Frances
 
						 
						 
						 
						 
						 
						 
						 
						 
						.jpg)